SPARTHERM VARIA BH

Retour vers les produits

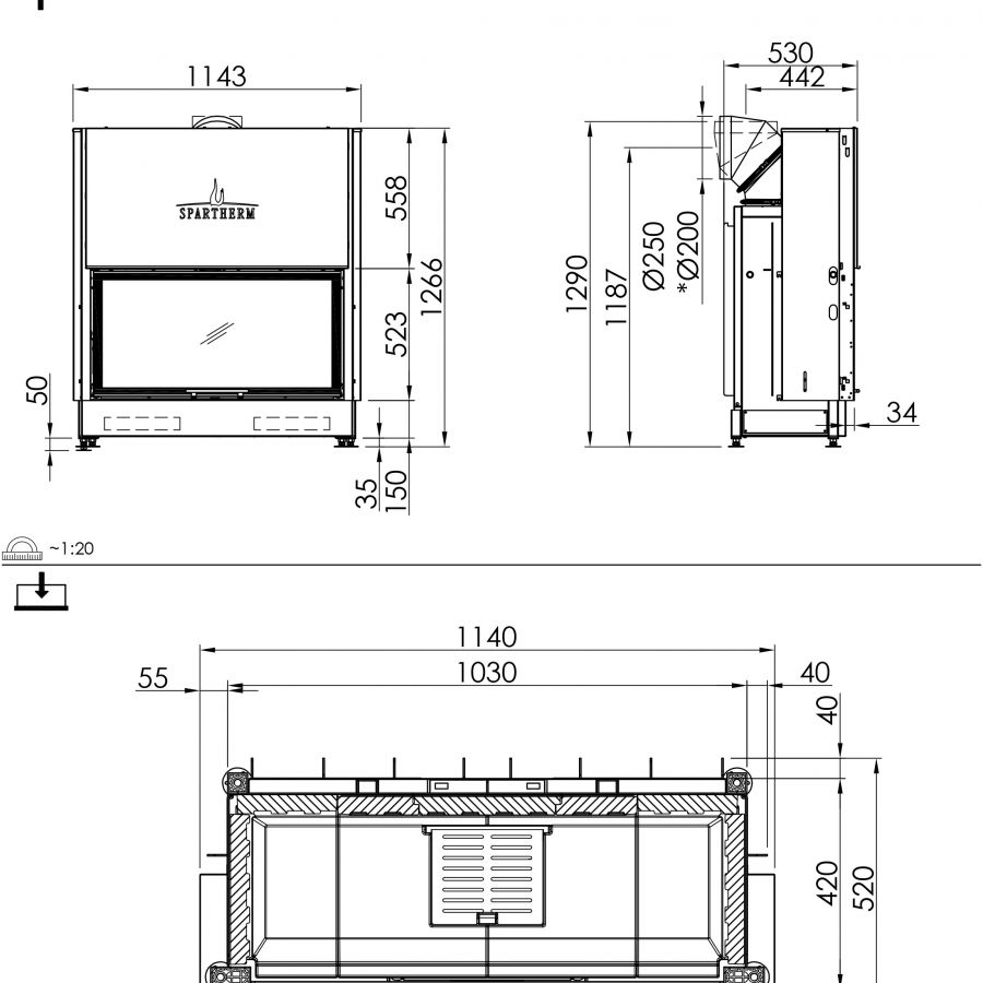
SPARTHERM VARIA BH

Le Spartherm Varia Bh est un insert au format large, offrant une vue panoramique sur le feu grâce à sa vitre frontale de style cinéma. Il propose un design moderne avec une vitre relevable automatique et un mécanisme électrique optionnel. Avec une puissance thermique de 7,3 à 13,5 kW, il garantit un chauffage économique et efficace, accompagné de fonctionnalités intelligentes pour optimiser la combustion.

 

Caractéristiques :

- Classe énergétique : A

- Norme EcoDesign

- Ouverture automatique de la vitre

- Couleur des chamottes : noir ou crème

- Fonctions d'assitance cheminée intelligente : 

      *S-Thermatik NEO (contrôle automatique de l'apport d'air)

      *S-ESAM (Ouverture de la vitre par simple pression)

      *S-VENT (Booster de chaleur)

      *S-USI II (Système de sécurité qui surveille l'infiltration du fumée dans l'habitation)

Energie
Dimensions HxLxP 129 x 114 x 53cm
Vitrage 1 face
Garantie constructeur 5 ans
Réglementation thermique RT2012
Type Foyers à Bois
Puissance De 7.3kW à 13.5kW
Rendement 78%
Taille de bûches 50cm
Fabricant Spartherm
Energie Bois
Ø évacuation des fumées 250/200mm
Largeur de vitre 100cm

Design, sur-mesure et haute qualité ont permis au groupe Spartherm de devenir une référence jusqu’à devenir le leader allemand des foyers vitrés et des poêles à bois.

En étroite collaboration avec des concepteurs, architectes d’intérieurs et designers, Spartherm joue la carte de l’innovation, notamment avec sa gamme Premium.

La grande force de Spartherm réside aussi dans sa capacité à faire du SUR-MESURE pour répondre à toutes les demandes en foyers ou en inserts. 

Origine : Allemagne

Infos & catalogues