Intérieur finition "Original" (lamelles verticales striées en fonte 20 mm)
pare étincelles escamotable de serie
plaque en verre fixe de serie
Intérieur finition "Original" (lamelles verticales striées en fonte 20 mm)
pare étincelles escamotable de serie
plaque en verre fixe de serie
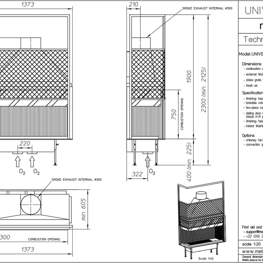
| Dimensions HxLxP | 190 x 130 x 58cm |
|---|---|
| Vitrage | 2 faces en angle |
| Type | Foyers à Bois |
|---|---|
| Taille de bûches | 100cm |
| Fabricant | Metalfire |
|---|---|
| Ø évacuation des fumées | 300mm |
| Ø de la prise d'air | 2X150mm |
| Largeur de vitre | 130cm |
| Cadres de finition |
| Niche acier en prolongement du foyer |
| grill BBQ plus support en inox |
| finition design |
| avaloir déporté |
L’amour des détails purs, la simplicité des matériaux minimalistes et le langage épuré des formes permettent à Metalfire de créer des produits de design intégrés à une vaste gamme standard et de proposer de nombreuses possibilités d'options et de travail sur mesure.
Gaz et bois, découvrez les collections Metalfire appréciées des architectes les plus renommés pour des créations originales et contemporaines.
Origine : Belgique